IKEA | Beauty Salon
Design: Natalia Prokopenko
Graphic Design: Bilbaobase
Location and photo copyright: IKEA for Business Shuwaikh, Kuwait​​​
Area: 100 m2
Year: 2024
This interesting project involved designing a beauty salon within the exhibition space of IKEA Kuwait. The beauty salon was meant to inspire future entrepreneurs to purchase IKEA products for their own business needs. It was essential to demonstrate how easy, affordable, and stylish it is to use IKEA products, even for setting up a beauty salon.
Moodboard
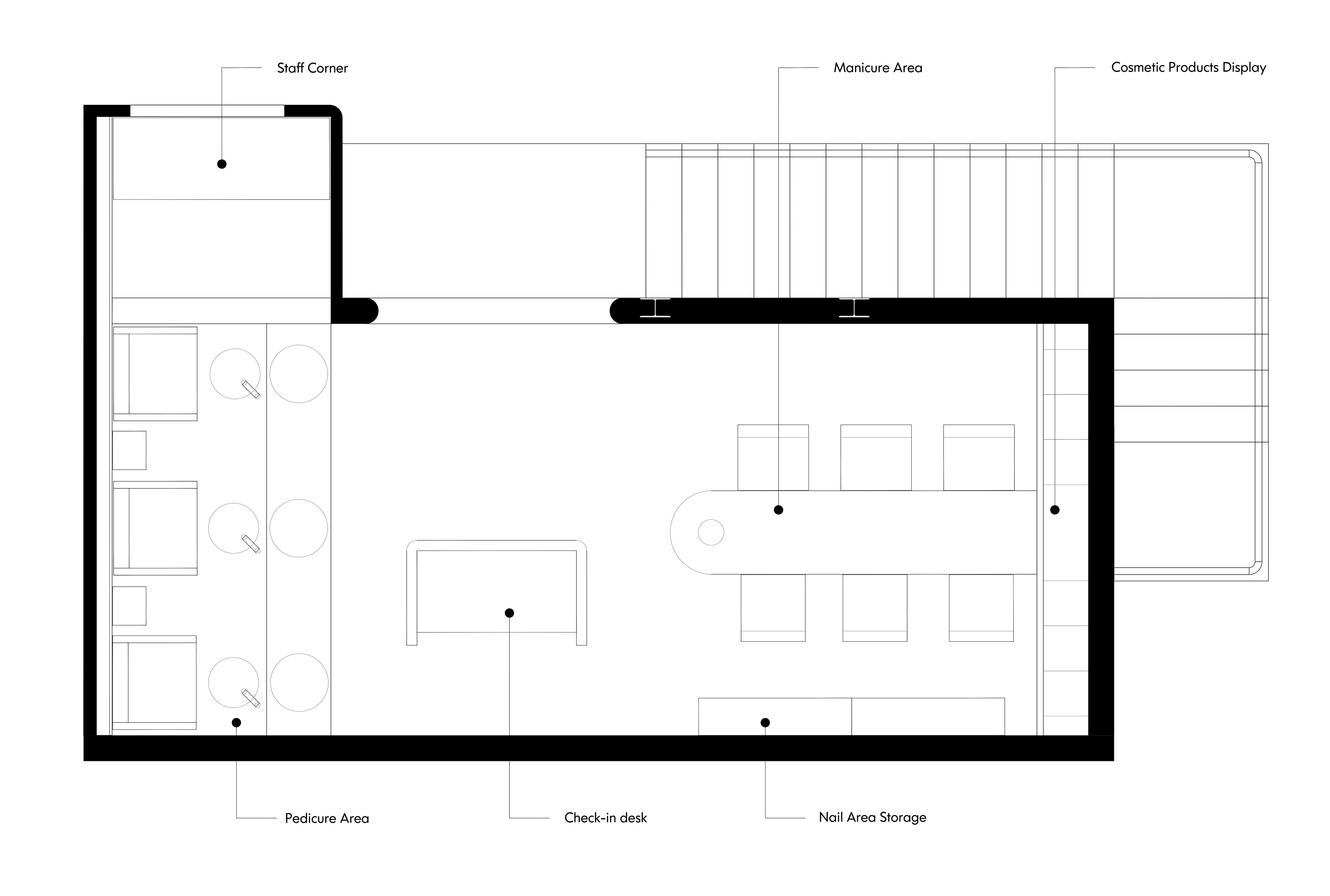
Ground Floor Plan
First Floor Plan
Natural materials were used in the decor, such as travertine, Marmorino plaster, and small pebbles— all to create a relaxed and cozy atmosphere while highlighting IKEA products. 
Lighting plays a special role in setting the mood. A large amount of reflected light from hidden illumination was used, creating a sense of expanded space and relaxation.
Implementation
Back to Top